Rustico in vendita

Vittorio Veneto, Piazza Fiume - San Giacomo Di Veglia
€ 62.000
8 locali 8 locali
390 Mq 390 Mq
1 bagno 1 bagno

Rustico in vendita

Vittorio Veneto, Piazza Fiume - San Giacomo Di Veglia

Descrizione annuncio

/SAN GIACOMO/

/NOSTRA ESCLUSIVA/

Casa semindipendente da ristrutturare in corte tranquilla - San Giacomo di Veglia

In posizione riservata ma comodissima, a pochi passi dalla piazza principale di San Giacomo di Veglia, proponiamo in vendita casa semindipendente da ristrutturare, inserita in una tranquilla corte interna.

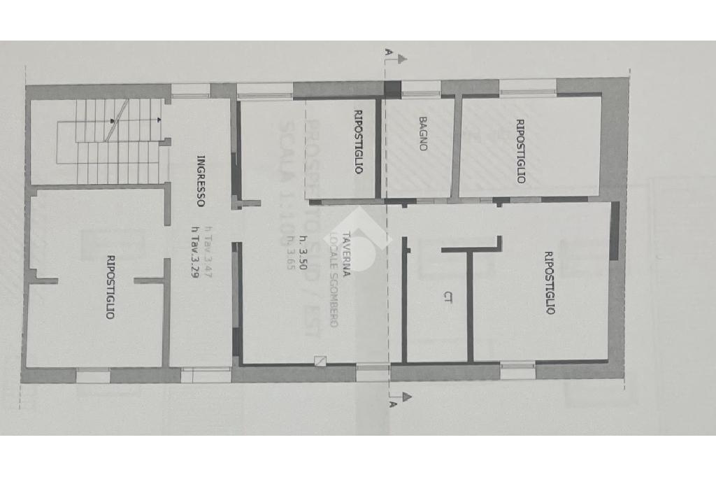
L'immobile si sviluppa su due livelli:

Piano terra composto da ampi spazi accessori: magazzino, taverna e una cantina interrata, ideali per ricavare ambienti di servizio o spazi funzionali secondo le proprie esigenze. Compreso di giardino privato.

Piano primo con circa 200 mq di superficie abitabile, completamente personalizzabile e ristrutturabile secondo il proprio gusto, con la possibilità di realizzare una spaziosa abitazione su misura.

La soluzione si presta perfettamente sia come residenza principale per chi cerca tranquillità a due passi dai servizi, sia come investimento per la realizzazione di più unità abitative o di una soluzione indipendente di ampie dimensioni.

Contesto silenzioso e riservato, ma ben collegato e comodo a tutti i principali servizi.

Mostra tutto

Nelle vicinanze

Trasporto pubblico Trasporto pubblico
Soffratta
Soffratta
2,3 Km
Via Menarè - Morosa
Via Menarè - Morosa
1,2 Km
Trasporto pubblico
1,9 Km
Ricariche auto elettriche Ricariche auto elettriche
IperTosano
2,3 Km
Scuole Scuole
Scuola Elementare Emilio Zanette
1,7 Km
Istituto comprensivo Vittorio Veneto 1 "Da Ponte"
1,9 Km
Scuole
2,1 Km
Scuola Media Cappella Maggiore
2,2 Km
Ic Vittorio Veneto 2
2,3 Km
Farmacia Farmacia
Farmacia al Meschio
1,7 Km
Farmacia
2,4 Km
Farmacia Val dei Fiori
2,5 Km
Parafarmacia
2,6 Km
Nuova Farmacia Comunale Di Costa
2,8 Km
Ospedali Ospedali
Presidio Ospedaliero di Vittorio Veneto
2,5 Km
Pronto Soccorso Ospedale Vittorio Veneto
2,5 Km
Supermercati Supermercati
Emisfero
1,1 Km
Cadoro
1,6 Km
Dico
1,7 Km
Lidl
2,0 Km
Coop&Coop
2,1 Km
Negozi Negozi
Il Fornaio
2,5 Km
Bar Bar
Bar
360 m
Osteria Pontavai
2,5 Km
Bar Monaco '72
2,6 Km
Bianconiglio
2,9 Km
Ristoranti Ristoranti
brasserie ai colli
1,7 Km
Le Macine
1,8 Km
Da Caio
1,9 Km
Al Castelletto
2,5 Km
Club degli spaghetti "La Loggia"
2,6 Km
Mostra tutto

Caratteristiche

Rif.:
61118906
Piano:
2 di 2 (Piano su più livelli)
Posti auto:
3
Camere da letto:
5
Arredamento:
Assente
Condizionamento:
Assente
Mostra tutto
Prezzo Prezzo
€ 62.000
Rata mutuo Rata mutuo
€ 289 / mese
Spese annue Spese annue
€ 0
Proponi il tuo prezzoProponi il tuo prezzo

Classe Energetica

G
G
G
G
G
G
G
G
G
EP invernale del fabbricato:
EP estiva del fabbricato:
Anno di costruzione:
1900
Riscaldamento:
Autonomo
Tipo impianto:
A stufa
Tipo alimentazione:
Altro

Ti interessa visionare l'immobile?

Fissa un appuntamento  Fissa un appuntamento

Richiedi informazioni

Clicca su Leggi per aprire l'informativa
* Questi campi sono obbligatori

Calcola il tuo mutuo

Semplice e senza impegno
Anticipo

( % )
Mutuo

( % )

pochi semplici passi

inserisci i tuoi dati
Questionario completato
Grazie per aver richiesto un appuntamento senza impegno con un nostro Consulente del Credito e Assicurativo.

Hai inserito correttamente tutti i dati necessari e a breve riceverai una e-mail con un link da convalidare per inviare i tuoi dati.
Affiliato
Studio Vittorio Srl
Viale Cavour, 169 31029 Vittorio Veneto (TV)

Il nostro staff


  • Alice Gava
    Affiliata

  • Edoardo Maria Cunzo
    Responsabile
Viale Cavour, 169 31029 Vittorio Veneto (TV)
Zona: Vittorio Veneto
Mostra su mappa
Affiliato
Studio Vittorio Srl
Viale Cavour, 169 31029 Vittorio Veneto (TV)

2025 Tecnocasa Franchising S.p.A. - P. IVA 08365160152 - Via Monte Bianco 60/A 20089 Rozzano (MI). Ogni agenzia ha un proprio titolare ed è autonoma. Privacy policy | Policy utilizzo | Cookie policy