Casa indipendente in vendita

Vittorio Veneto, Via Trementina - Longhere
€ 340.000
8 locali 8 locali
310 Mq 310 Mq
2 bagni 2 bagni

Casa indipendente in vendita

Vittorio Veneto, Via Trementina - Longhere

Descrizione annuncio

//NOSTRA ESCLUSIVA DI VENDITA//

ZONA LONGHERE

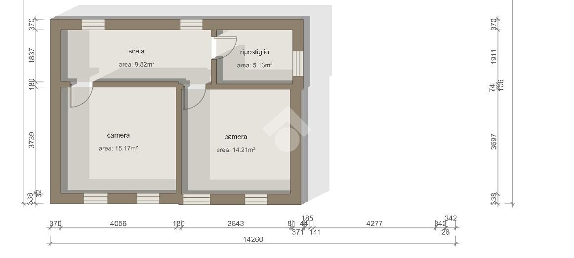
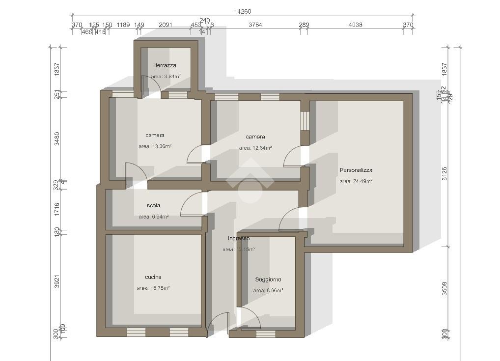
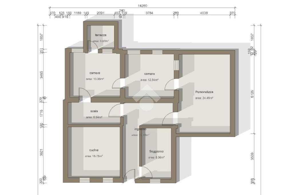
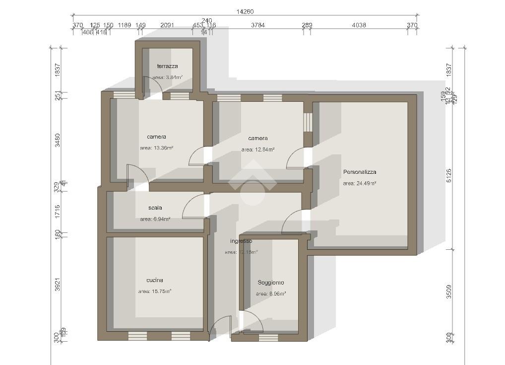
Situata nella tranquilla località di Longhere, nel comune di Vittorio Veneto, questa casa indipendente offre un'ampia metratura di 310 mq, distribuita su più livelli.

Costruita nel 1957 e ristrutturata nel 2014, l'abitazione è composta da otto locali, tra cui quattro camere da letto, due bagni, un terrazzo e tre ulteriori stanze versatili. La proprietà include anche un box auto e quattro posti auto esterni, oltre a un giardino che circonda la casa, perfetto per momenti di relax all'aperto.

L'immobile gode di una bella esposizione, con una vista suggestiva sulle montagne circostanti. La posizione è strategica: a soli cinque minuti dal centro di Vittorio Veneto e con facile accesso all'autostrada, garantisce la vicinanza a tutti i servizi essenziali.

La spaziosità degli ambienti rende questa casa ideale per una famiglia numerosa, offrendo comfort e praticità in un contesto naturale e ben collegato.

Inoltre l'immobile dispone di una veranda costruita succesivamente, travata a vista, la quale può essere utilizzata come zona svago oppure si può creare una nuova unità abitativa dato che dispone gia dei vari allacciamenti.

Per ulteriori informazioni contattateci in agenzia e seguiteci anche su Facebook, cliccando 'mi piace' sulla pagina 'Agenzia Tecnocasa Vittorio Veneto'

Scaricate gratuitamente l'app Tecnocasa sul vostro Smartphone e sarete sempre aggiornati sulle nostre proposte di vendita.

Mostra tutto

Nelle vicinanze

Trasporto pubblico Trasporto pubblico
Vittorio Veneto
Vittorio Veneto
2,5 Km
Trasporto pubblico
470 m
Ricariche auto elettriche Ricariche auto elettriche
Revine Via Fornaci
2,8 Km
Scuole Scuole
Scuola Primaria Alessandro Manzoni
200 m
Scuola Materna Savassa Forcal
730 m
Itis Vittorio Veneto
1,6 Km
Scuole
1,6 Km
Scuola Media Paritaria Dante Alighieri
1,6 Km
Farmacia Farmacia
Erboristeria
1,3 Km
Farmacia
1,3 Km
Negozi Negozi
Panificio Grava
2,4 Km
Benetton
2,7 Km
Bar Bar
Bar Porta Cadore
460 m
La Giraffa
1,3 Km
Bar al Ponte
2,3 Km
Bar Cortina
2,3 Km
Al Canton
2,4 Km
Ristoranti Ristoranti
Ristorante Antica Vittorio
490 m
Ostaria Concordia
530 m
Trattoria Via Caprera
600 m
Ristoranti
1,1 Km
Pizzeria al 128
1,3 Km
Mostra tutto

Caratteristiche

Rif.:
61021072
Piano:
Su più livelli di 3
Totale piani:
3
Box:
1
Posti auto:
4
Terrazzi:
1
Mostra tutto
Prezzo Prezzo
€ 340.000
Rata mutuo Rata mutuo
€ 1.602 / mese
Proponi il tuo prezzoProponi il tuo prezzo
Immobile valutato con T·Valuta

Classe Energetica

Questo immobile è esente da classe energetica
Anno di costruzione:
1957
Riscaldamento:
Autonomo
Tipo impianto:
A radiatori
Tipo alimentazione:
Metano

Ti interessa visionare l'immobile?

Fissa un appuntamento  Fissa un appuntamento

Richiedi informazioni

Clicca su Leggi per aprire l'informativa
* Questi campi sono obbligatori

Calcola il tuo mutuo

Semplice e senza impegno
Anticipo

( % )
Mutuo

( % )

pochi semplici passi

inserisci i tuoi dati
Questionario completato
Grazie per aver richiesto un appuntamento senza impegno con un nostro Consulente del Credito e Assicurativo.

Hai inserito correttamente tutti i dati necessari e a breve riceverai una e-mail con un link da convalidare per inviare i tuoi dati.
Affiliato
Studio Vittorio Srl
Viale Cavour, 169 31029 Vittorio Veneto (TV)

Il nostro staff


  • Alice Gava
    Affiliata

  • Edoardo Maria Cunzo
    Responsabile
Viale Cavour, 169 31029 Vittorio Veneto (TV)
Zona: Vittorio Veneto
Mostra su mappa
Affiliato
Studio Vittorio Srl
Viale Cavour, 169 31029 Vittorio Veneto (TV)

2026 Tecnocasa Franchising S.p.A. - P. IVA 08365160152 - Via Monte Bianco 60/A 20089 Rozzano (MI). Ogni agenzia ha un proprio titolare ed è autonoma. Privacy policy | Policy utilizzo | Cookie policy